Moderne feriehus med wellness og fjordudsigt

Sommerhus - 8 personer - Fjordengen - 6960 - Hvide Sande

8 personer

Oversigt

Emne nr.: 328-176668
7 overnatninger
Fra DKK 5.833,-
Inkl. rengøring
Moderne feriehus ved Hvide Sande med wellness, fitness og smuk udsigt over Ringkøbing Fjord.
Grundareal 1.588 m²
Boligareal 245 m²
Soverum 4
Badeværelser 2
Afstand vand 1.500 m
Highspeed internet Highspeed
Ikkeryger
Husdyr 1
  • Tilbyder miniferie Nej
  • Afstand indkøb 900 m
  • Spa Ja
  • Sauna Ja
  • Parabol/kabel TV Ja
  • Vaskemaskine Ja
  • Tørretumbler Ja
  • Opvaskemaskine Ja
  • Ladestander til elbil Ja

Beskrivelse

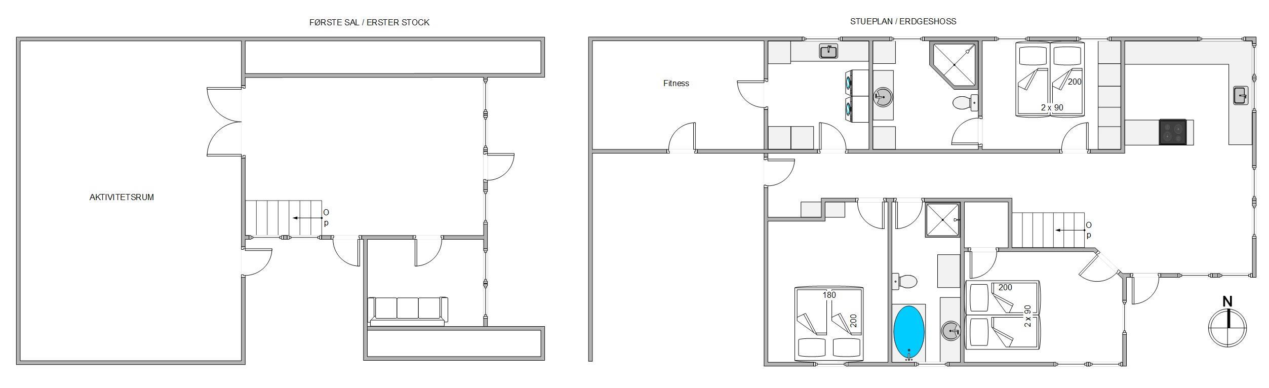
På Fjordengen i udkanten af Hvide Sande ligger dette moderne feriehus med plads til 8 personer (og 1 hund). Feriehuset er moderne indrettet og råder blandt andet over et fitnessrum, spabad, vildmarksbad, saunatønde, flere balkoner og udsigt ud over de grønne enge og Ringkøbing Fjord.

Spabad, saunatønde og fitnessrum

Det 245 kvadratmeter store feriehus byder med sine 2 etager masser af plads til 8 personer. Her finder I alt, hvad I har brug for på ferien; gode praktiske faciliteter, elektrisk brændeovn og lidt ekstra wellness til de afslappende fridage.

Sommerhuset er dejlig rummeligt og lyst, og de mange vinduer giver jer en fantastisk udsigt ud over engen og fjorden, både under madlavningen og fra sofaen. Der er både opvaskemaskine, vaskemaskine og tørretumbler i huset, og de praktiske opgaver er hurtigt overstået. Desuden er der gulvvarme på stueetagen. 

På første sal er der et hyggeligt aktivitetsrum med poolbord, dart og et sjovt spillebord til børnene. Her kan familien tilbringe mange sjove timer, måske endda lave en feriekonkurrence? Der er udgang til skøn, overdækket terrasse med vidunderlig udsigt.

På det ene af husets 2 badeværelser står spabadet - klar til at stå for lidt ekstra wellness og afslapning. Er I mere til udendørs wellness, kan I hoppe i vildmarksbadet udenfor og derefter varme jer i den hyggelige saunatønde. Fra første sal er der adgang til flere balkoner, hvorfra I kan nyde den flotte udsigt over naturen og fjorden.

I feriehuset er der er lækkert fitnessrum, så her er der rig mulighed for nogle dejlige stunder, måske med hele familien samlet omkring træningen.

Afskærmet terrasse, natursti og kort vej til centrum

Rundt om feriehuset løber en velholdt græsplæne, og på den ene side af huset finder I en afskærmet terrasse, hvor I kan nyde vejret og udsigten. Der er sørget for både havemøbler, liggestole og grill, så I kan udnytte sommerdagene fuldt ud. Her er der også en bål og shelter plads som I kan hygge jer med. 

I bor lige ved siden af Ringkøbing Fjord, og har I lyst til at gå en tur i den flotte natur, kan I følge den lille sti rundt over kanalen. Der er mulighed for at fortsætte hele vejen ned til fjorden og kabelbanen - et sikkert hit på en varm sommerdag.Prøv f.eks. kræfter med vindsurfing eller stand up padling - måske en tur i et af husets fire kajakker?

Hvide Sandes charmerende bymidte ligger kun få minutters kørsel fra huset. Det lille havnemiljø oser af feriestemning, især i sommersæsonen, og et stort udvalg af forretninger, restauranter og caféer venter på jer.

Faciliteter

  • Opholdsrum

    • CD afspiller
    • DVD-afspiller
      1
    • Gulv: Tæppe
    • Gulvvarme
    • Radio
    • Fladskærms-TV
      1
    • Ekstra varmekilder
  • Soverum

    • Gulv: Tæppe
    • Gulvvarme
    • Dobbeltsenge
      2
    • Enkeltsenge
      2
    • Sovepladser
      8
    • Soverum
      4
    • Ekstra sovepl. DB-sovesofa
      1
    • 1. soverum/sengestørrelser
      180X200
    • 2. soverum/sengestørrelser
      2x90x200
    • 3. soverum/sengestørrelser
      2x90x200
  • Køkken

    • Komfur: El m. ovn
    • Komfur: Induktion m. ovn
    • Køleskab
    • Opvaskemaskine
    • Mikroovn
    • Separat fryser /L
      180
  • Baderum

    • Gulvvarme bad
    • Antal badeværelser
      2
    • Tømmespa, antal pers.
      2
  • Objektinfo - Inde

    • Areal: Hus m²
      245
    • Poolbillard
    • Bordtennis
    • Byggeår
      2009
    • Husdyr tilladt
    • Husdyr antal, max
      1
    • Ikke ryger hus
    • Personantal
      8
    • Danske TV-kanaler (Betalingskanaler)
    • Tyske tv-programmer
    • Tørretumbler
    • Varme: Fjernvarme
    • Vaskemaskine
    • Satellit (tyske kanaler samt et par danske)
    • Gratis fiber Internet
  • Objektinfo - ude

    • Afstand i meter: Hav
      1,5 km
    • Afstand i meter: Indkøb
      900 m
    • Grundens areal i m2
      1588
    • Trækulgrill
    • Havemøbler
    • Solvogne
    • Parkering: Carport
    • Terrasse: åben
    • Terrasse: Afskærmet
    • Terrasse: Lukket
    • Terrasse: Overdækket
    • Naturgrund
    • Plænegrund
    • Affald hentes:
      Fredag
    • Skraldespand - Liter
      240
    • Vildmarksbad: Antal pers
      4
    • Ladestik til el-bil
    • Udesauna
  • Koncepter

    • Skiftedag: Lørdag
    • Vandaflæsning
  • Miniferie

    • Ja, tak - tillad miniferie

Priser og kalender

Kalender

Ankomst
Forrige Næste
  • juni 2026
    mationtofr
    231234567
    24891011121314
    2515161718192021
    2622232425262728
    272930
    28
  • juli 2026
    mationtofr
    2712345
    286789101112
    2913141516171819
    3020212223242526
    312728293031
    32
   Se om emnet er ledigt på den valgte dato
Ledig
Optaget
   Ankomst mulig
Varighed

Pris

Periode
Ankomst
Afrejse
Varighed
1 uge
Personer
Op til 8 personer

Bemærk

Ankomst er ikke valgt.
Aftale- og lejebetingelser