Hyggelig ferielejlighed med havudsigt og terrasse

Sommerhus - 4 personer - Øerkrogvejen 2 - Øer / Maritime - 8400 - Ebeltoft

4 personer

Oversigt

Emne nr.: 048-84189
7 overnatninger
Fra DKK 3.261,-
Inkl. rengøring og forsikring
Hyggelig ferielejlighed i Øer Maritime med terrasse, havudsigt og moderne faciliteter nær strand og by.
Grundareal 150 m²
Boligareal 57 m²
Soverum 2
Badeværelser 1
Afstand vand 25 m
Highspeed internet Highspeed
Ikkeryger
Husdyr
  • Tilbyder miniferie Nej
  • Afstand indkøb 100 m
  • Fælles indendørs swimmingpool Ja
  • Udsigt til vand Ja
  • Indhegnet område Ja
  • Aircondition Ja
  • Vaskemaskine Ja
  • Opvaskemaskine Ja
  • Ladestander til elbil Ja
  • Energivenligt Ja

Beskrivelse

Velkommen indenfor

I Øer Maritime Ferieby finder I denne hyggelige og velplacerede ferielejlighed med plads til 4 personer. Lejligheden ligger i stueplan og det første der møder jer er en stor, skøn og sydvendt terrasse med afslappende møbler og grill. Allerede inden I træder ind i lejligheden, får I en varm følelse af, at I får en dejlig ferie. Fra det meste af lejligheden og den store terrasse, er der smuk udsigt over den maritime kanal og de andre fine huse. Lejligheden er hyggelig, samtidig med, at den er lys og moderne. Flot badeværelse med stor brusekabine samt rummelig entre. Dejlig stue, der indbyder til herlige hyggestunder med en god bog eller et af ”husets” brætspil. Stuen er i åben forbindelse med hyggelig spisekrog og et veludstyret køkken. Fra stuen er der adgang til 2 dejlige soveværelser med dobbeltseng og skabe. Lejligheden er er indrettet til gangbesværet med fx badestol og rampe

Nyd livet udenfor

Lejligheden er beliggende i et hyggeligt miljø med farverige feriehuse og udsigt til kanalen. Feriebyen er for både familier, unge og ældre med mulighed for at gå på restaurant, multihaller, lystbådehavn og meget mere, inden for få hundrede meter. 1 stor og dejlige terrasse med afslappende møbler og grill. Terrassen er sydvendt/solrig hele dagen så her er virkelig mange fine m2 der kan nydes dagen lang.

Kom tæt på de lokale oplevelser

Øer er et hyggeligt og populært ferieområde, som ligger nær skov og strand. Stranden kendetegnes som en sandstrand med lavt vand. Dog kan man visse steder på stranden, opleve en blanding af sten og sand. Vil man have fart på ferien med mountainbike cykler, finder man i området en 13 km lang bane, der inddeles i sværhedsgrader. Er man til moderne kunst, kan man køre til havnen i Ebeltoft og tage et kig ind i Glasmuseet. Havnen tilbyder også flere gode spisesteder og der er mulighed for at købe friskfangede fisk. Skal du besøge Ebeltoft by, er det værd at tage et kig i de hyggelige brostensbelagte gader. Her finder man også flere spændende butikker med bl.a. brugskunst og hyggelige cafeer. I Ebeltoft by finder du også byens skønne seværdighed Det Gamle Rådhus, hvor folk fra nær og fjern kan blive gift. Feriehuset ligger cirka en times kørsel fra Kattegatcentret og Nordens største forlystelsespark Djurs Sommerland.



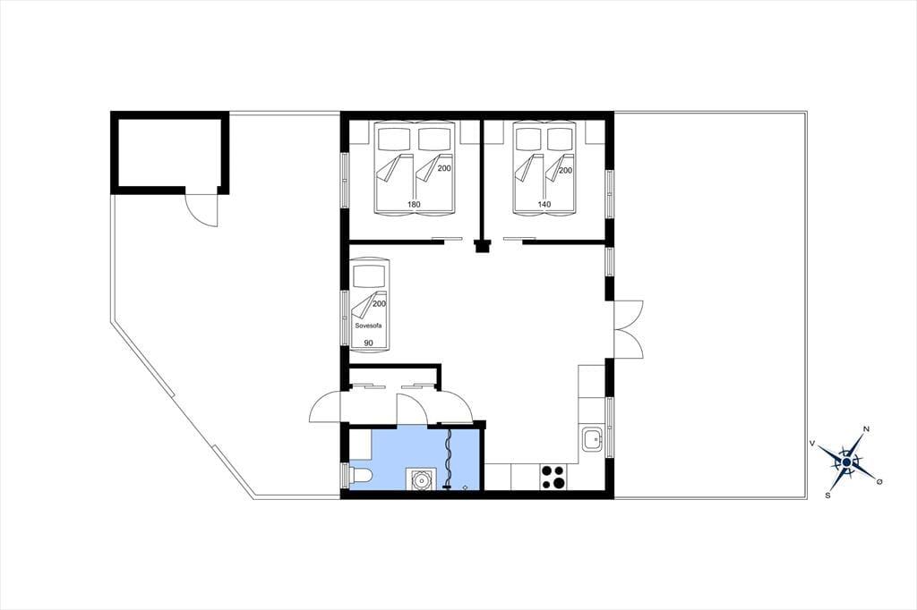
Rumindretning

  • Soveværelse
    • Dobbeltseng - 140x200
  • Soveværelse
    • Dobbeltseng - 180x200

Vores gæsteanmeldelser Eksterne anmeldelser

4,5
Baseret på 2 vurderinger
Sidste vurdering fra d. 28-07-2024
5
(1)
4
(1)
3
(0)
2
(0)
1
(0)
Kommentarer
Ingen vurderinger har kommentarer.

Faciliteter

  • Hus Info

    • Antal voksne
      4
    • Bruser
    • Byggeår
      1988
    • Delvis renoveret år
      2021
    • Fælles Pool / Indendørs Pool
      Adgang til svømmehallen mod betaling
    • Grundareal / Delvis indhegnet grund
      150 m²
    • Havudsigt
    • Husareal
      57 m²
    • WC
  • Afstande

    • Afstand bus
      100 m
    • Afstand golfbane
      8 km
    • Afstand hav
      25 m
    • Afstand indkøb / Sommerbutik
      100 m
    • Afstand kyst
      100 m
    • Afstand lufthavn
      25 km
    • Afstand restaurant
      100 m
    • Afstand strand / Sandstrand
      1 km
  • Energi / Opvarmning

    • Elvarme
    • Varmepumpe / Med køl
  • Hårde hvidevarer

    • Elkedel
    • Emhætte
    • Fryser
      100
    • Kaffemaskine
    • Komfur
    • Køleskab
    • Opvaskemaskine
    • Ovn
    • Vaskemaskine
  • Multimedier

    • Chromecast
      • Det er muligt at se egne TV- og streamingtjenester via husets Chromecast/ Apple-TV og egen mobi...
    • Gratis Wi-Fi - Over 100 Mbit
    • TV
  • Ekstra

    • Golfferie
  • Udenfor

    • 2 x Terrasse / Åben terrasse
    • Grill
      Gasgrill
    • Havemøbler
    • Lukket have/grund
    • Parasol
      1
    • Parkering på grunden
  • Diverse

    • 2 x Flise-/klinkegulv
    • 2 x Gulvvarme
    • 4 x Træ-/parketgulv
    • Sovesofa enkelt
    • Åbent køkken
  • Regler

    • Husdyr ikke tilladt
    • Opladning af elbil tilladt / Lader til elbil forefindes (Type 2-stik, medbring kabel)
    • Rygning ikke tilladt
  • Pris inklusiv

    • Slutrengøring inkl.

Priser og kalender

Kalender

Ankomst
Næste
   Se om emnet er ledigt på den valgte dato
Ledig
Optaget
   Ankomst mulig
Varighed

Pris

Periode
Ankomst
Afrejse
Varighed
1 uge
Personer
Op til 4 personer

Bemærk

Ankomst er ikke valgt.
Aftale- og lejebetingelser