Sommerhus - 4 personer - Grünen Deich - 21354 - Bleckede

4 personer

Oversigt

Emne nr.: 540-266054-184467
7 overnatninger
Fra DKK 6.891,-
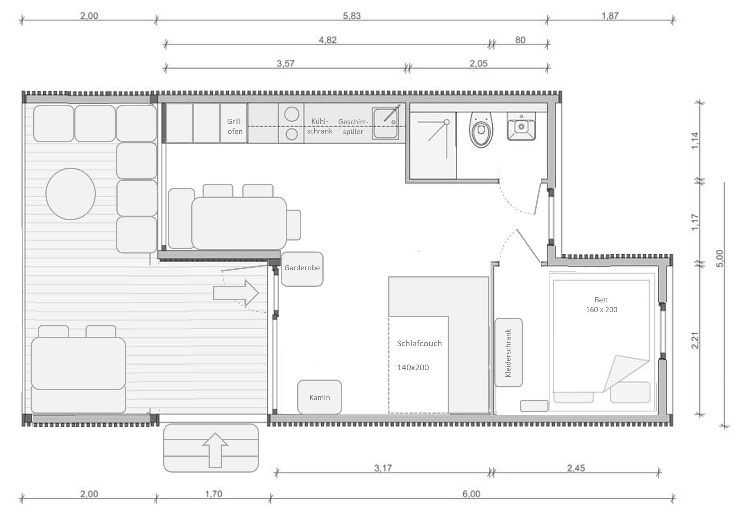
Boligareal 35 m²
Soverum 1
Badeværelser 1
Internet
Ikkeryger
Husdyr 1
  • Tilbyder miniferie Nej
  • Afstand indkøb 10 km
  • Brændeovn Ja
  • Opvaskemaskine Ja

Beskrivelse

Beskrivelsen foreligger desværre ikke på Dansk. Se teksten på Tysk nedenfor, eller se den maskinoversatte tekst på Dansk.
Ferienhaus für 4 Gäste mit 35m² in Bleckede (266054) (Erdgeschoss)

Kleinis Tinyhaus bietet einen gemütlichen, aber stilvollen Zufluchtsort in den Elbtalauen - begleitet vom Kuckuck im Frühling, Nachtigallgesang im Sommer und dem Ruf der Wildgänse im Winter.

Hier finden eine 4-köpfige Familie oder 3 Erwachsene Platz. Entspannt vor dem Kaminofen oder auf der Terrassenlounge chillen oder gemeinsame Essen in der Wohnküche oder auf der Terrasse. Im kleinen Garten läd ein Strandkorb zum Enstpannen ein. Über Bluetoothlautsprecher können Sie ihre Musik auch mit nach draußen nehmen. Die Küche ist hochwertig ausgestattet mit WMF Kaffeemaschine, Miniofen, Herd und Spülmaschine . Das Vollbad mit Regendusche lädt zur Entspannung ein - nach einem Elbbad, langen Deichspaziergängen oder Ausflügen in die schönen Städtchen Lauenburg oder Bleckede. Hochwertige Materialien aus Holz, Stein und Schafwolle und Bilder einer Hamburger Künstlerin runden Kleinis Tinyhaus ab.

Raumaufteilung

  • Schlafzimmer, 5 m², 2 Personen
    • Doppelbett - Size: 151-180 cm
  • Wohn-/Schlafzimmer, 20 m², 2 Personen
    • Einzelcouch - variable size

Faciliteter

  • Afstand

    • Apotek
      9 km
    • Berlin
      275 km
    • Biograf
      20 km
    • Busstoppested
      1 km
    • Elbauen
      500 m
    • Elbstrand
      500 m
    • Hamburg
      60 km
    • Hannover
      150 km
    • Købmand
      10 km
    • Restaurant
      10 km
  • Badeværelsesudstyr

    • Bad / WC
    • Bad/toilet
    • Barrierefri bruser
    • Bruser
    • Hårtørrer
  • Beliggenhed

    • Langs floden
    • Løsrevet
    • Rolig beliggenhed
    • Strandafstand 100-500m
  • Bo & Sove

    • Komfur
  • Bæredygtighed

    • Affaldssortering
    • Håndklæder kan bruges flere gange
    • Intet engangsbestik eller -service
    • Skraldespand til organisk affald
    • Vandbesparende enheder
  • Generel

    • Hund tilladt
  • Generelt udstyr

    • Egen indgang
    • Ikke-rygere
    • Internet
    • Mørklægningsmuligheder
    • Opvarmet
    • Ovn
    • Stueetage
    • WLAN
  • Grundlæggende

    • Stue soveværelse
      1
    • Størrelse
      35 m²
  • Kæledyr

    • Dyr er tilladt
  • Køkken

    • Frys/fryseskab
    • Komfur (2 plader)
    • Miniovn
    • Tekøkken
  • Køkkenudstyr

    • Induktionskomfur
    • Kaffemaskine
    • Køkkenvask
    • Køleskab
    • Opvaskemaskine
    • Vandvarmer
  • Måltider

    • Brødservice
  • Region/sted

    • På cykelstien
  • Service

    • Håndklæder inkluderet
    • Sengetøj inkluderet
  • Stue/soveplads

    • Dobbeltseng
    • Fliser
    • Garderobe
    • Pejs/brændovn
    • Sofa seng
    • Sofa seng
    • Stort spisebord med stole
  • Udendørs faciliteter

    • Altanmøbler
    • Chill-Lounge
    • Gratis parkering
    • Have
    • Havemøbler
    • Parkeringsplads
    • Solbeskyttelse
    • Strandstol på objektet
    • Terrasse
    • Udendørs siddepladser i haven
    • Udvendig trappe
    • Veranda

Priser og kalender

Kalender

Ankomst
Næste
   Se om emnet er ledigt på den valgte dato
Ledig
Optaget
   Ankomst mulig
Varighed

Pris

Periode
Ankomst
Afrejse
Varighed
1 uge
Personer
Op til 4 personer

Bemærk

Ankomst er ikke valgt.
Aftale- og lejebetingelser