Stor feriebolig med pool og aktivitetsrum i Marielyst
Sommerhus - 24 personer - Norvej - Marielyst - 4872 - Idestrup
Alternative emner
Sommerhuse i nærheden (267)24 personer
Oversigt
Emne nr.: 121-82-0770
7 overnatninger
Fra
DKK 10.286,-
Valgfri rengøring: DKK 2.239,-
Stor feriebolig i naturskønne omgivelser med aktivitetsrum, udendørs pool og spa, perfekt til flere familier.
- Tilbyder miniferie Ja
- Afstand indkøb 1.300 m
- Spa Ja
- Parabol/kabel TV Ja
- Brændeovn Ja
- Aktivitetsrum Ja
- Vaskemaskine Ja
- Tørretumbler Ja
- Opvaskemaskine Ja
- Energivenligt Ja
Beskrivelse
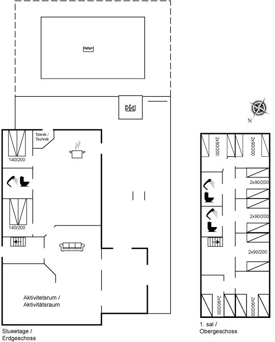
I landlige omgivelser ligger denne store feriebolig velegnet for flere familier, som ønsker at holde ferie sammen. Her er gode aktivitetsmuligheder ude som inde, og med soverum der hovedsageligt ligger på 1. sal inklusive hems, hvor 6 sovepladser befinder sig. Aktivitetsrum findes i åben forbindelse med opholdsstuen. Den udendørs swimmingpool står til rådighed fra 1. juni til 31. august.
Bemærk: der er installeret solceller til produktion af strøm i sommerhuset.
Indretning
Denne tidligere landejendom egner sig til 24 personer samt 2 børn op til 3 år. Ferieboligen er på 215 m², er i 2 plan, og er bygget i 1925. I 2017 gennemgik ferieboligen en renovering. Det er ikke tilladt at medbringe husdyr. Ferieboligen er udstyret med energibesparende varmepumpe. Hele ferieboligen har gulvvarme. Ferieboligen har vaskemaskine. Tørretumbler. Frysekapacitet på 60 liter. Der er desuden brændeovn. Til de små er der 2 stk. barnestole.
Udenfor
Ferieboligen er beliggende på en 5014 m² stor havegrund. Der er 1500 m til havet. Nærmeste forretning er beliggende i en afstand af 1300 m. Til ferieboligen hører 60 m² terrasseareal. Der er redskabsrum. Gynge. Sandkasse. Trampolin. Legetårn. Rutchebane. Petanque. Fodboldmål. Parkering ved ferieboligen.
Aktivitetsrum
I aktivitetsrummet er der følgende udstyr: Billard. Bordtennis. Bordfodbold.
Soveforhold
Der er i alt 9 soveværelser. Sovepladserne fordeler sig på: 4 sovepladser i dobbeltsenge. 14 sovepladser i enkeltsenge. 6 sovepladser på madrasser. 6 af disse sovepladser befinder sig på husets hems. Derudover er der 2 stk. barnesenge.
Køkken
Køkkenet er udstyret med 3 køleskabe. Der er 8 induktionskogeplader, 2 varmluftovne, mikrobølgeovn samt 2 opvaskemaskiner.
Toilet og bad
Der er 3 badeværelser med bruseniche og 3 toiletter. Der er gulvvarme på 3 badeværelser.
Spa
Der er mulighed for afslapning i udendørs standvandsspa til 6 personer.
Multimedier
I ferieboligen er der 2 TV. DVD-afspiller. Radio. Der er mindst 4 danske kanaler. Mindst 4 tyske kanaler. Der er trådløst internet til rådighed.
Værd at vide
Huset står til rådighed fra kl.16:00 på indflytningsdagen - uanset ugedag. Ingen udlejning til ungdomsgrupper, hvor alle er 15-25 år. Rygning ikke tilladt. Ved overtrædelse af forbuddet opkræves et gebyr på minimum DKK 3.000,-.
Indretning
Denne tidligere landejendom egner sig til 24 personer samt 2 børn op til 3 år. Ferieboligen er på 215 m², er i 2 plan, og er bygget i 1925. I 2017 gennemgik ferieboligen en renovering. Det er ikke tilladt at medbringe husdyr. Ferieboligen er udstyret med energibesparende varmepumpe. Hele ferieboligen har gulvvarme. Ferieboligen har vaskemaskine. Tørretumbler. Frysekapacitet på 60 liter. Der er desuden brændeovn. Til de små er der 2 stk. barnestole.
Udenfor
Ferieboligen er beliggende på en 5014 m² stor havegrund. Der er 1500 m til havet. Nærmeste forretning er beliggende i en afstand af 1300 m. Til ferieboligen hører 60 m² terrasseareal. Der er redskabsrum. Gynge. Sandkasse. Trampolin. Legetårn. Rutchebane. Petanque. Fodboldmål. Parkering ved ferieboligen.
Aktivitetsrum
I aktivitetsrummet er der følgende udstyr: Billard. Bordtennis. Bordfodbold.
Soveforhold
Der er i alt 9 soveværelser. Sovepladserne fordeler sig på: 4 sovepladser i dobbeltsenge. 14 sovepladser i enkeltsenge. 6 sovepladser på madrasser. 6 af disse sovepladser befinder sig på husets hems. Derudover er der 2 stk. barnesenge.
Køkken
Køkkenet er udstyret med 3 køleskabe. Der er 8 induktionskogeplader, 2 varmluftovne, mikrobølgeovn samt 2 opvaskemaskiner.
Toilet og bad
Der er 3 badeværelser med bruseniche og 3 toiletter. Der er gulvvarme på 3 badeværelser.
Spa
Der er mulighed for afslapning i udendørs standvandsspa til 6 personer.
Multimedier
I ferieboligen er der 2 TV. DVD-afspiller. Radio. Der er mindst 4 danske kanaler. Mindst 4 tyske kanaler. Der er trådløst internet til rådighed.
Værd at vide
Huset står til rådighed fra kl.16:00 på indflytningsdagen - uanset ugedag. Ingen udlejning til ungdomsgrupper, hvor alle er 15-25 år. Rygning ikke tilladt. Ved overtrædelse af forbuddet opkræves et gebyr på minimum DKK 3.000,-.
Vores gæsteanmeldelser Eksterne anmeldelser
Faciliteter
-
Adgang til ferieboligen
-
Nøgleboks med kode
-
-
Aktivitetsrum
-
Aktivitetsrum
-
Billard
-
Bordfodbold
-
Bordtennis
-
-
Bemærk
-
Aktivitetshus
-
Ingen ungdomsgrupper efter anmodning
-
Rygning er forbudt
-
-
Indretning
-
2 niveauer
-
Antal børn (0-3 år)2
-
Antal voksne inkl. 4-11 år24
-
Bebygget areal215 m²
-
Brændeovn1
-
Byggeår1925
-
Frysekapacitet (antal liter)60
-
Gulvvarme
-
Højstol2
-
Renovering2017
-
Tidligere gård
-
Tørretumbler1
-
Varmepumpe
-
Vaskemaskine1
-
-
Køkken
-
Antal induktionskogeplader8
-
Køleskab3
-
Mikrobølgeovn1
-
Opvaskemaskine2
-
Varmluftovn2
-
-
Multimedier
-
> 3 danske kanaler
-
> 3 tyske kanaler
-
Antal tv'er2
-
DVD1
-
Radio
-
Trådløst internet
-
-
Soveforhold
-
Antal soveværelser9
-
Barneseng2
-
Dobbeltseng (antal sovepladser)4
-
Enkeltseng (antal sovepladser)14
-
Hems (antal sovepladser)
-
Madrasser (antal sovepladser)6
-
Soveplads ikke i soveværelset
-
-
Spa
-
Udendørs forfyldt spabad (antal personer)6
-
-
Toilet og bad
-
Antal badeværelser3
-
Antal toiletter3
-
Brusekabine
-
Gulvvarme3
-
-
Udenfor
-
Anlagt have
-
Butik1,3 km
-
Fodbold mål
-
Glide
-
gynge
-
Hav1,5 km
-
Legetårn
-
Parkeringsplads ved huset
-
Petanque
-
Redskabsskur
-
Sandkasse
-
Størrelse af grunden5014 m²
-
Terrasse60 m²
-
Trampolin
-
Miniferie
Der er begrænset mulighed for miniferie hele året, typisk uden for højsæsonen.
Priser og kalender
Kalender
Varighed
Pris
Periode
- Ankomst
- Afrejse
- Varighed
- 1 uge
Personer
Op til 24 personer
Bemærk
Ankomst er ikke valgt.