Ferielejlighed - 4 personer - Zum Böhler Strand - 25826 - St. Peter-Ording
Alternative emner
Sommerhuse i nærheden (374)4 personer
Oversigt
Emne nr.: 540-119149-86762
7 overnatninger
Fra
DKK 7.176,-
4
personer
- Tilbyder miniferie Nej
- Parabol/kabel TV Ja
- Udsigt til vand Ja
- Vaskemaskine Ja
- Tørretumbler Ja
- Opvaskemaskine Ja
Beskrivelse
Beskrivelsen foreligger desværre ikke på Dansk. Se teksten på Tysk nedenfor, eller se den maskinoversatte tekst på Dansk.
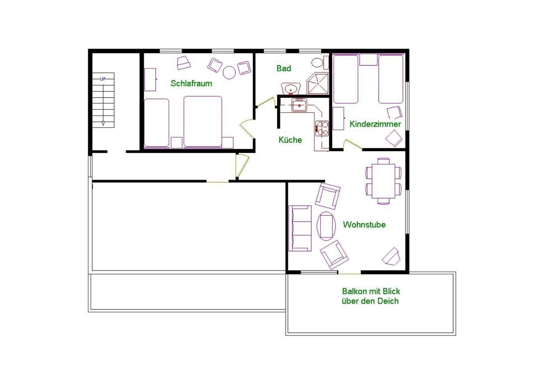
Ferienwohnung/App. für 4 Gäste mit 65m² in St. Peter-Ording (119149) (1. Stock)
Kurzbeschreibung:
Urlaubsdomizil St. Peter Ording! Genießen Sie das Nordklima und erholen Sie sich! Ferienwohnung mit Balkon und fantastischem Ausblick!
Lagebeschreibung:
Die Ferienwohnung auf St. Peter Ording befindet sich in ruhiger und ansprechender Umgebung. Sie wohnen in schöner Lage und fernab von jeglichem Autoverkehr und erreichen den Seedeich, den Böhler Leuchtturm und die Dünen in wenigen Gehminuten. Verbringen Sie die schönste Jahreszeit auf unserer reizenden Nordseeküste St. Peter Ording. Erleben Sie das Nordklima hautnah und atmen Sie die Nordsee Luft ein.
Spazieren Sie an der schönen Promenade entlang und genießen Sie den Blick auf die Nordsee. Die Restaurants sind im maritimen Still gehalten und versprechen das Beste aus der nordischen Küche. Erholen Sie sich auf unserem Urlaubsdomizil und lassen Sie die Seele baumeln. Schwingen Sie sich auf Ihr Surfbrett und erleben Sie feinstes Wellenreiten. Für Anfänger oder Profis ist immer die richtige Welle dabei.
Ausstattungen:
Es erwartet Sie eine gemütliche Nichtraucher Ferienwohnung mit Platz für bis zu 4 Personen. Die Ferienwohnung ist ideal geschnitten mit großzügiger Wohnküche. Im Wohnbereich erwartet Sie ein bequemes Sofa und zwei Sessel. Sie gelangen vom Wohnbereich direkt auf den Balkon, die großen Fenster verleihen dem Raum viel Licht und ein wohliges zuhause Gefühl. Des Weiteren gibt es einen Flatscreen und eine Essecke für bis zu vier Personen. Unsere moderne Küchenzeile ist mit allem, was Sie für ein zauberhaftes Gericht benötigen ausgestattet.
Die Küche ist mit Ceranfeld, Kühlschrank, Spülmaschine, Abzugshaube eingerichtet und bietet genügend Arbeitsfläche. Ein Schlafzimmer ist mit Doppelbett und das zweite ist mit zwei Einzelbetten, Kleiderschrank und Nachttischen mit Lampe ausgestattet. Das Badezimmer ist mit Dusche und WC versehen und lässt viel Platz für Ihre Utensilien.
Urlaubsdomizil St. Peter Ording! Genießen Sie das Nordklima und erholen Sie sich! Ferienwohnung mit Balkon und fantastischem Ausblick!
Lagebeschreibung:
Die Ferienwohnung auf St. Peter Ording befindet sich in ruhiger und ansprechender Umgebung. Sie wohnen in schöner Lage und fernab von jeglichem Autoverkehr und erreichen den Seedeich, den Böhler Leuchtturm und die Dünen in wenigen Gehminuten. Verbringen Sie die schönste Jahreszeit auf unserer reizenden Nordseeküste St. Peter Ording. Erleben Sie das Nordklima hautnah und atmen Sie die Nordsee Luft ein.
Spazieren Sie an der schönen Promenade entlang und genießen Sie den Blick auf die Nordsee. Die Restaurants sind im maritimen Still gehalten und versprechen das Beste aus der nordischen Küche. Erholen Sie sich auf unserem Urlaubsdomizil und lassen Sie die Seele baumeln. Schwingen Sie sich auf Ihr Surfbrett und erleben Sie feinstes Wellenreiten. Für Anfänger oder Profis ist immer die richtige Welle dabei.
Ausstattungen:
Es erwartet Sie eine gemütliche Nichtraucher Ferienwohnung mit Platz für bis zu 4 Personen. Die Ferienwohnung ist ideal geschnitten mit großzügiger Wohnküche. Im Wohnbereich erwartet Sie ein bequemes Sofa und zwei Sessel. Sie gelangen vom Wohnbereich direkt auf den Balkon, die großen Fenster verleihen dem Raum viel Licht und ein wohliges zuhause Gefühl. Des Weiteren gibt es einen Flatscreen und eine Essecke für bis zu vier Personen. Unsere moderne Küchenzeile ist mit allem, was Sie für ein zauberhaftes Gericht benötigen ausgestattet.
Die Küche ist mit Ceranfeld, Kühlschrank, Spülmaschine, Abzugshaube eingerichtet und bietet genügend Arbeitsfläche. Ein Schlafzimmer ist mit Doppelbett und das zweite ist mit zwei Einzelbetten, Kleiderschrank und Nachttischen mit Lampe ausgestattet. Das Badezimmer ist mit Dusche und WC versehen und lässt viel Platz für Ihre Utensilien.
Außenbereich:
Ein kostenloser Parkplatz steht für Sie zur Verfügung.
Besonderes:
Bettwäsche und Handtücher sind kostenpflichtig. In der kompletten Ferienwohnung ist W-LAN vorhanden.
Allgemeine Informationen:
Anreise ab 16:00 Uhr
Abreise bis 10:00 Uhr
Zusätzliche Preisinfos:
Bitte beachten Sie, dass in St. Peter-Ording eine Kurtaxe zu leisten ist. Diese bei der Kurverwaltung zu entrichten.
Nach der Buchung stehen Ihnen zusätzlich die Zahlungsmöglichkeiten Banküberweisung, Kreditkarte, Sofortüberweisung und Google/Apple Pay zur Verfügung. Weitere Informationen entnehmen Sie bitte Ihrer Buchungsbestätigung.
Ein kostenloser Parkplatz steht für Sie zur Verfügung.
Besonderes:
Bettwäsche und Handtücher sind kostenpflichtig. In der kompletten Ferienwohnung ist W-LAN vorhanden.
Allgemeine Informationen:
Anreise ab 16:00 Uhr
Abreise bis 10:00 Uhr
Zusätzliche Preisinfos:
Bitte beachten Sie, dass in St. Peter-Ording eine Kurtaxe zu leisten ist. Diese bei der Kurverwaltung zu entrichten.
Nach der Buchung stehen Ihnen zusätzlich die Zahlungsmöglichkeiten Banküberweisung, Kreditkarte, Sofortüberweisung und Google/Apple Pay zur Verfügung. Weitere Informationen entnehmen Sie bitte Ihrer Buchungsbestätigung.
Bitte beachten Sie, dass in St. Peter-Ording eine Kurtaxe zu leisten ist. Diese bei der Kurverwaltung zu entrichten.
Faciliteter
-
Bad
-
Bruser
-
Hårtørrer
-
-
Bo & Sove
-
Radio
-
-
Generel
-
Ikke-rygere
-
Internet
-
WLAN
-
-
Generelt udstyr
-
Tørretumbler
-
-
Grundlæggende
-
Køkkener1
-
Stue1
-
Størrelse65 m²
-
-
Kæledyr
-
Kæledyr er ikke tilladt
-
-
Køkken
-
Fryser
-
Kaffemaskine
-
Køleskab
-
Opvaskemaskine
-
Ovn
-
Tekøkken/blok
-
Toaster
-
-
Region/sted
-
Havudsigt
-
-
Service
-
Høj stol
-
Vaskemaskine
-
-
Stue/soveplads
-
Baby højstol
-
Dobbeltseng
-
Enkeltseng
-
TV
-
-
Udendørs
-
Balkon / Loggia
-
Have/plæne
-
Havestole/liggestole
-
Priser og kalender
Kalender
Varighed
Personer
Pris
Periode
- Ankomst
- Afrejse
- Varighed
- 1 uge
Personer
Ingen personer er valgt
Bemærk
Ankomst er ikke valgt.
Der er ikke valgt personer.