Sommerhus - 6 personer - Badallee - 25826 - St. Peter-Ording

6 personer

Oversigt

Emne nr.: 530-539252
7 overnatninger
Fra DKK 11.235,-
6 personer
Boligareal 108 m²
Soverum 3
Badeværelser 2
Internet
Ikkeryger
Husdyr 1
  • Tilbyder miniferie Ja
  • Sauna Ja
  • Brændeovn Ja
  • Vaskemaskine Ja
  • Opvaskemaskine Ja

Beskrivelse

Beskrivelsen foreligger desværre ikke på Dansk. Se teksten på Tysk nedenfor, eller se den maskinoversatte tekst på Dansk.
Reetdachhus Reetkate, Reetdachhaus Reetkate

Die Ferienanlage Dorf Domizil“ in St. Peter-Ording Dorf bietet 4 wunderschöne Feriendomizile für 2 bis 6 Personen. Wunderbar ruhig und dennoch zentral liegt das Dorf Domizil im historischen Zentrum des Ortsteiles Dorf. Zu Fuß sind bequem zahllose Einkaufsmöglichkeiten, Restaurants, Cafés und eine Bäckerei erreichbar. Mittwochs findet der Wochenmarkt mit regionalem Angebot auf dem Marktplatz statt. Das Gewerbegebiet mit Lebensmitteleinzelhandel, Drogerie und Bekleidungsgeschäften ist fußläufig erreichbar. Auch der Süddeich ist in 5-10 Gehminuten erreicht. Jedes Domizil verfügt über eine eigene Sauna und einen eigenen Parkplatz am Objekt.
Die Lage
Das wunderschöne Haus liegt sehr zentral und dennoch angenehm ruhig und zurückgelegen im Ortsteil Dorf. Restaurants und Geschäfte im Dorf sind ebenso fußläufig erreichbar wie der herrliche 12km lange Strand, der St. Peter-Ording so einmalig macht.
Carpe Diem! In dem wunderschönen Ferienhaus ist max. ein Haustier zugelassen. Gebührenpflichtig und nach Rücksprache.

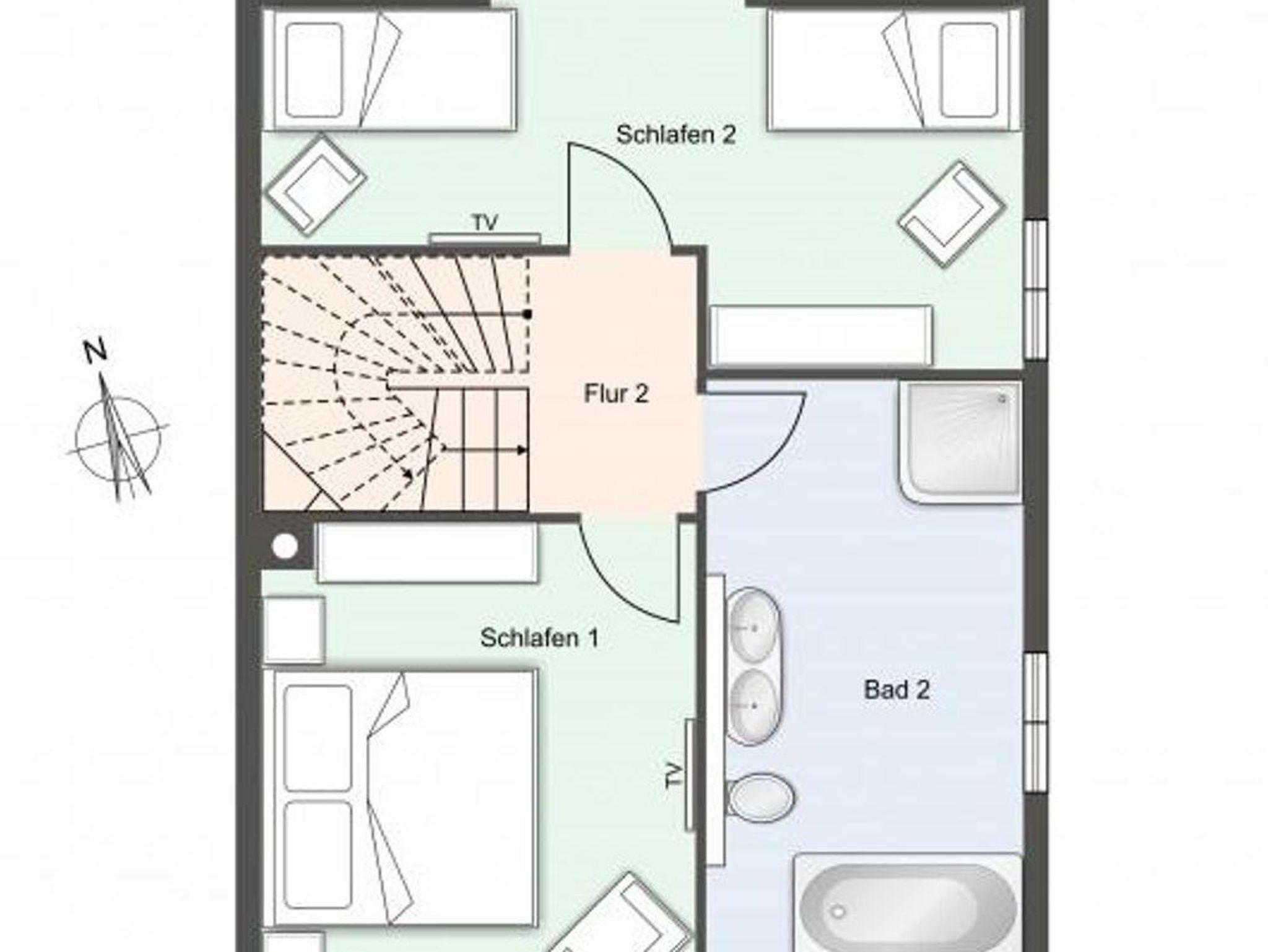
Die luxuriöse Haushälfte unter Reet verfügt über ca. 108 m² Wohnfläche und bietet Platz für 6 Personen. Im Erdgeschoss befindet sich der lichtdurchflutete Wohnraum mit TV, Kamin, einer offenen Küche sowie einem stilvollen Essbereich. Die Wohnräume sind mit exklusiven Möbeln von Riviera Maison ausgestattet. Die Küche verfügt über hochwertige Elektrogeräte. An den Wohnbereich schließen sich ein Flur mit eingebauter Garderobe, ein Hauswirtschaftsraum und ein Duschbad an. Das gesamte Erdgeschoss verfügt über geschmackvolle Fußbodenfliesen, die über eine Fußbodenheizung (Erdwärme) beheizt werden können. Über eine Holztreppe gelangt man in das mit Parkett ausgelegte Obergeschoss. Dieses verfügt ebenfalls über eine Fußbodenheizung. Die beiden Schlafzimmer, eines mit einem Boxspring-Doppelbett und eines mit 2 Boxspring-Einzelbetten, sind ebenfalls jeweils mit TV ausgestattet. Einbauschränke gewähren Ihnen hinreichend Ablageflächen. Darüber hinaus befindet sich im Obergeschoss ein weiteres, geräumiges Bad mit Dusche und Badewanne. Vom Obergeschoss führt die Holztreppe hinauf in das Dachgeschoss. Hier befindet sich ein zusätzliches Schlafzimmer mit 2 Boxspring-Einzelbetten, die zum Doppelbett zusammen geschoben werden können. Dieses wunderschöne Haus lässt keine Wünsche offen und bringt Sie sofort in Urlaubsstimmung. Das Grundstück mit Stellplatz, großer Rasenfläche und einer geschützten, sonnigen Terrasse ist mit heimischen Pflanzen und einer Düne angelegt. Aus einem Strandkorb können Sie den Blick auf das Haus oder die Düne genießen. Für zusätzliche Entspannung sorgt eine großzügige Gartensauna. Carpe Diem!
In dem wunderschönen Ferienhaus ist max. ein Haustier zugelassen. Gebührenpflichtig und nur nach Rücksprache.

Faciliteter

  • Børnefaciliteter

    • Familievenlig
  • Grundlæggende faciliteter

    • Størrelse
      108 m²
  • Indkvartering Faciliteter

    • Ikke-ryger hus
    • Internet i det offentlige område
    • Sauna
  • Omgivende faciliteter

    • Cykelrum
    • Have til brug
    • Parkeringsplads
    • Strandstol
  • Servicefaciliteter

    • Bad / WC
    • Bad/toilet
    • Dyr velkomne
    • Flere soveværelser
    • Husdyr tilladt eller efter anmodning
    • Hårtørrer
    • Ikke-rygere
    • Internet - WiFi
    • Kaffemaskine
    • Kakkelovn
    • Komfur
    • Køleskab
    • Mikroovn
    • Mulighed for fryser
    • Opvaskemaskine
    • Ovn
    • Pejs/brændovn
    • På jorden
    • Separat køkken
    • Separat opholdsrum
    • Siddegruppe
    • Strandstol (personlig)
    • Stue
    • Terrasse
    • Toaster
    • TV
    • TV - fladskærm
    • Vandvarmer
    • Vaskemaskine
    • WC-toilet

Miniferie

Der er begrænset mulighed for miniferie hele året, typisk uden for højsæsonen.

Priser og kalender

Kalender

Ankomst
Næste
  • februar 2026
    mationtofr
    51
    62345678
    79101112131415
    816171819202122
    9232425262728
    10
  • marts 2026
    mationtofr
    91
    102345678
    119101112131415
    1216171819202122
    1323242526272829
    143031
   Se om emnet er ledigt på den valgte dato
Ledig
Optaget
   Ankomst mulig
Varighed
Personer

Pris

Periode
Ankomst
Afrejse
Varighed
1 uge
Personer
Ingen personer er valgt

Bemærk

Ankomst er ikke valgt.
Der er ikke valgt personer.
Aftale- og lejebetingelser