Ferielejlighed - 9 personer - Munich - 81477
9 personer
Oversigt
Emne nr.: 305-DE8000.603.1
Kan ikke bookes på nuværende tidspunkt.
- Tilbyder miniferie Nej
- Vaskemaskine Ja
Beskrivelse
Beskrivelsen foreligger desværre ikke på Dansk. Se teksten på Engelsk nedenfor, eller se den maskinoversatte tekst på Dansk.
#8 min Metro Train to Oktoberfest"
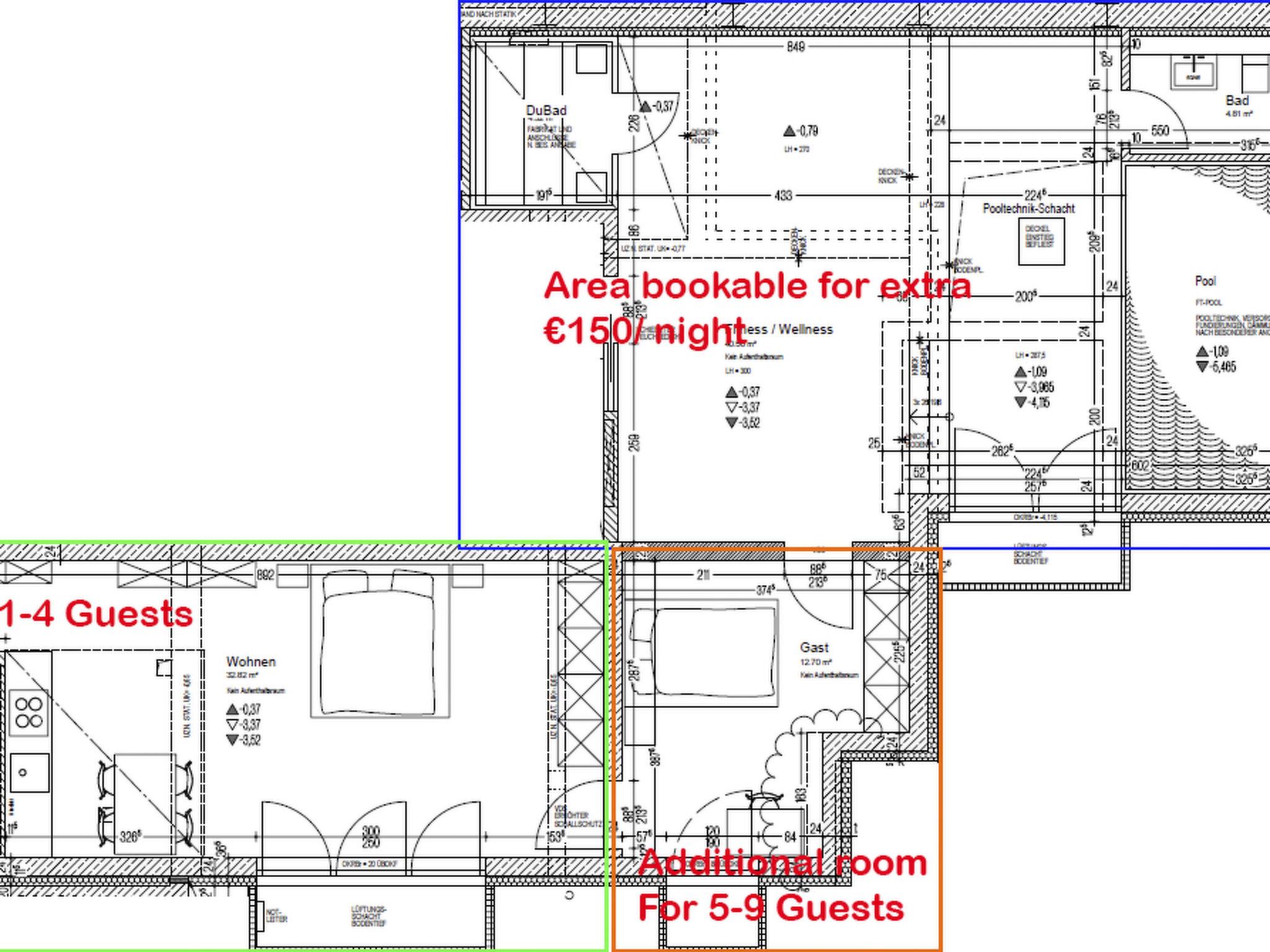
In 2024 newly built flat with top equipment with optional access to private pool, gym, second bathroom (must be booked extra for euro 150/day)
? Top flat in quiet + central location
? Underfloor heating
Room 1:
? Living room: bunk sofa bed and bed (160x200)
? 3 mattresses on the floor
? Kitchen with induction hob, microwave, fridge, dishwasher, washing machine
Room 2: Only available when booking for 5-9 people
? Bedroom: Murphy bed (160x200cm)
? Sofa bed
The flat consists of two rooms,
1. living room/bedroom (43m²) and
2. one bedroom (12m²)
When booking for 4 or fewer guests, only the living room/bedroom will be available.
When booking for 5 or 9 guests, the two bedrooms will also be open.
Room 1: Living room/bedroom (40m²)
Own kitchen
Own bathroom
Flat screen TV
Soundproofing
Coffee machine
Free WLAN
Wardrobe
1 double bed 160x200cm
2 mattresses on the floor (when booking for 7-8 people)
Living room: bunk sofa bed
---------------------
In your own kitchen:
Fridge
washing machine
Microwave oven
Coffee machine
electric kettle
Induction cooker
Kitchen utensils
toaster
Oven
Cleaning products
In your own bathroom:
WC
Walk-in shower
Towels
Hair dryer
Toilet paper
Facilities of the flat:
Bed linen
wardrobe
Ironing facilities
Iron
heating
fan
sofa
Seating area
Flat screen Smart TV
Laundry rack
The flat has private access to a gym, a swimming pool and a second bathroom. Access to the private gym + heated swimming pool + second bathroom is only possible if an additional booking is made for 150 euros/day. If the area is not booked, the door is locked.
----------------------
? Check-in: From 4 pm you can check in flexibly via a code
? Parking: for a fee/reservation required
? Please let us know at the time of booking whether a second bed or one or more sofa beds should be prepared because you need separate sleeping facilities. If we do not receive a message from you, our cleaning team will assume that only one bed or sofa bed is required per 2 people.
? Pets: Please inform us and transfer or book before arrival
? Smoking ban: If there is a smell of smoke in the flat, an extra fee of euro 100 will be charged.
Basic information
- Pets allowed: any
- allowed size of dogs: large (more than 60 cm)
- Type of property: holiday apartment
- is located in: Housing estate
- type of building: Multiple-family dwelling
- Floor on which the object can be found: Basement
- Total number of floors in the building above the ground floor: 3
- Year of the last complete renovation : 2024
- not observable from the street
- non-smoking
- Number of bedrooms: 2
- Number of bathrooms: 1
Top features
- WiFi
- air conditioning: no
- heating: Everywhere
- underfloor heating: Everywhere
- Total of private car parking spaces: None
- distance to free communal parking spaces: 5 m
Sleeping
bedroom 2
- double bed (from 1.51 m to 1.79 m width)
bedroom 4
- double bed (from 1.51 m to 1.79 m width)
- sofa bed for 1 person
in the living area
- 2x bunk bed
- 3x extra bed
Bathroom
bathroom 2
- bath tub with shower
- basin
- toilet
- hair dryer
- daylight
Cooking/Living
- coffee machine: capsule coffee machine
- fridge/freezer: freezing compartment, deep freezer, fridge
- oven
- toaster
- electric kettle
- dishtowels
- number of dining tables: no
- number of seats: no
- number of living rooms: 1
- living room is dimmable
- stove
Entertainment
- TV: TV
Utility
- washing machine: For sole use in the object
- iron
- vaccum cleaner
- fan: 1
- standing fan
- smoke alarm
Type of building: Multiple-family dwelling.
In 2024 newly built flat with top equipment with optional access to private pool, gym, second bathroom (must be booked extra for euro 150/day)
? Top flat in quiet + central location
? Underfloor heating
Room 1:
? Living room: bunk sofa bed and bed (160x200)
? 3 mattresses on the floor
? Kitchen with induction hob, microwave, fridge, dishwasher, washing machine
Room 2: Only available when booking for 5-9 people
? Bedroom: Murphy bed (160x200cm)
? Sofa bed
The flat consists of two rooms,
1. living room/bedroom (43m²) and
2. one bedroom (12m²)
When booking for 4 or fewer guests, only the living room/bedroom will be available.
When booking for 5 or 9 guests, the two bedrooms will also be open.
Room 1: Living room/bedroom (40m²)
Own kitchen
Own bathroom
Flat screen TV
Soundproofing
Coffee machine
Free WLAN
Wardrobe
1 double bed 160x200cm
2 mattresses on the floor (when booking for 7-8 people)
Living room: bunk sofa bed
---------------------
In your own kitchen:
Fridge
washing machine
Microwave oven
Coffee machine
electric kettle
Induction cooker
Kitchen utensils
toaster
Oven
Cleaning products
In your own bathroom:
WC
Walk-in shower
Towels
Hair dryer
Toilet paper
Facilities of the flat:
Bed linen
wardrobe
Ironing facilities
Iron
heating
fan
sofa
Seating area
Flat screen Smart TV
Laundry rack
The flat has private access to a gym, a swimming pool and a second bathroom. Access to the private gym + heated swimming pool + second bathroom is only possible if an additional booking is made for 150 euros/day. If the area is not booked, the door is locked.
----------------------
? Check-in: From 4 pm you can check in flexibly via a code
? Parking: for a fee/reservation required
? Please let us know at the time of booking whether a second bed or one or more sofa beds should be prepared because you need separate sleeping facilities. If we do not receive a message from you, our cleaning team will assume that only one bed or sofa bed is required per 2 people.
? Pets: Please inform us and transfer or book before arrival
? Smoking ban: If there is a smell of smoke in the flat, an extra fee of euro 100 will be charged.
Basic information
- Pets allowed: any
- allowed size of dogs: large (more than 60 cm)
- Type of property: holiday apartment
- is located in: Housing estate
- type of building: Multiple-family dwelling
- Floor on which the object can be found: Basement
- Total number of floors in the building above the ground floor: 3
- Year of the last complete renovation : 2024
- not observable from the street
- non-smoking
- Number of bedrooms: 2
- Number of bathrooms: 1
Top features
- WiFi
- air conditioning: no
- heating: Everywhere
- underfloor heating: Everywhere
- Total of private car parking spaces: None
- distance to free communal parking spaces: 5 m
Sleeping
bedroom 2
- double bed (from 1.51 m to 1.79 m width)
bedroom 4
- double bed (from 1.51 m to 1.79 m width)
- sofa bed for 1 person
in the living area
- 2x bunk bed
- 3x extra bed
Bathroom
bathroom 2
- bath tub with shower
- basin
- toilet
- hair dryer
- daylight
Cooking/Living
- coffee machine: capsule coffee machine
- fridge/freezer: freezing compartment, deep freezer, fridge
- oven
- toaster
- electric kettle
- dishtowels
- number of dining tables: no
- number of seats: no
- number of living rooms: 1
- living room is dimmable
- stove
Entertainment
- TV: TV
Utility
- washing machine: For sole use in the object
- iron
- vaccum cleaner
- fan: 1
- standing fan
- smoke alarm
Type of building: Multiple-family dwelling.
Vores gæsteanmeldelser Eksterne anmeldelser
Faciliteter
-
Afstand
-
Lufthavn MUC38,2 km
-
-
Husinfo
-
Antal badeværelser1
-
Antal soveværelser2
-
Antal værelser4
-
Boligareal54 m²
-
Fryser
-
Husdyr1
-
Håndklæder gratis
-
Ikke rygere
-
Internet
-
Internet (DSL)
-
Internet (ISDN)
-
Køleskab
-
Linnedfri
-
Ovn
-
Radiator
-
TV
-
Tv International
-
Vaskemaskine
-
WLAN
-
-
Tema
-
Byferie
-
Natteliv
-
Priser og kalender
Kalender
Ankomst
-
marts 2026
ma ti on to fr lø sø 9 1 10 2 3 4 5 6 7 8 11 9 10 11 12 13 14 15 12 16 17 18 19 20 21 22 13 23 24 25 26 27 28 29 14 30 31 -
april 2026
ma ti on to fr lø sø 14 1 2 3 4 5 15 6 7 8 9 10 11 12 16 13 14 15 16 17 18 19 17 20 21 22 23 24 25 26 18 27 28 29 30 19
Se om emnet er ledigt på den valgte dato
Ledig
Optaget
Ankomst mulig
Varighed
Personer
Pris
Periode
- Ankomst
- Afrejse
- Varighed
Personer
Ingen personer er valgt
Bemærk
Kan ikke bookes på nuværende tidspunkt.