Herskabsvilla - 52 personer - 5866 - Swolgen
52 personer
Oversigt
Emne nr.: 363-NL-5866-05
Kan ikke bookes på nuværende tidspunkt.
- Tilbyder miniferie Nej
- Sauna Ja
- Vaskemaskine Ja
- Tørretumbler Ja
- Opvaskemaskine Ja
Beskrivelse
Feriehus med sauna
Bolig:
Dette feriehus med wellness, rekreation og fantastiske omgivelser er perfekt til en uforglemmelig ferie i Limburg. Ideel til ferie med familie og/eller venner. Beliggenheden i et skovklædt, landligt område i Limburg-landskabet, tæt på den tyske grænse, er ideel til smukke gå- og cykelture. Nærliggende Arcen med slotshaver, spa og ølbryggeriet Hertog Jan er en udflugt værd.Det skønne feriehus består af 2 gruppeovernatninger, hvilket betyder, at ejendommen har flere køkkener og opholdsrum. Der er en stor spisestue, hvor du kan gå med hele gruppen, en rummelig, åben opholds- og spisestue og endda et bibliotek. Til afslapning er der et wellness-område med sauna til rådighed. Der er et opholdsrum med bordfodbold og en stor tv-skærm med mulighed for at tilslutte din bærbare computer. Bordtennisbordet kan findes (opbevares) i skuret. I den private gårdhave til den historiske bolig kan du sidde udenfor, men stadig ude af vinden. Den store have, en smuk græsplæne, en terrasse og nogle legeredskaber er placeret på forsiden. Du kan medbringe dit eget grilludstyr eller leje det hos Slagerij van de Pasch i Meerlo. Forstærket musik (såsom en DJ eller et band) er ikke tilladt i huset. Roligt område: forstærket musik er ikke tilladt, og der skal være stille udenfor efter kl.
Layout:
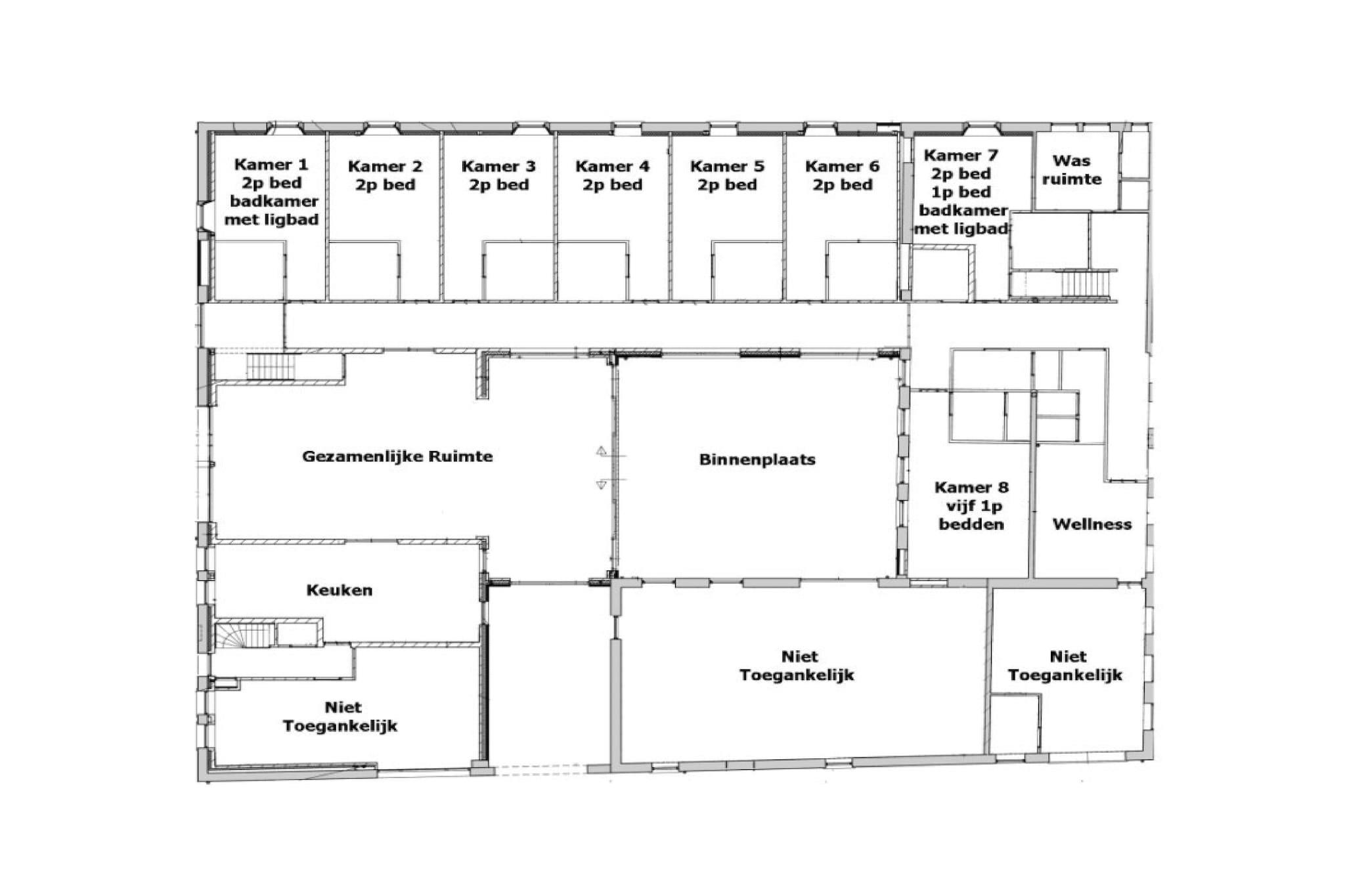
Stueetage: (entre, Køkken(2x komfur, kaffemaskine, 2x ovn, 2x combi-mikroovn, 2x opvaskemaskine , 2x køleskab, fryser), stue / spisestue(Fjernsyn, spisebord, sofahjørne), Soveværelse med badeværelse(dobbeltseng eller 2 enkeltsenge Senge, badekar, bruser, håndvask, toilet), Soveværelse med badeværelse(dobbeltseng eller 2 enkeltsenge Senge, bruser, håndvask, toilet), Soveværelse med badeværelse(dobbeltseng eller 2 enkeltsenge Senge, bruser, håndvask, toilet), Soveværelse med badeværelse(dobbeltseng eller 2 enkeltsenge Senge, bruser, håndvask, toilet), Soveværelse med badeværelse(dobbeltseng eller 2 enkeltsenge Senge, bruser, håndvask, toilet), Soveværelse med badeværelse(dobbeltseng eller 2 enkeltsenge Senge, bruser, håndvask, toilet), Soveværelse med badeværelse(enkeltseng, dobbeltseng, bruser, håndvask, toilet), Soveværelse med badeværelse(5x enkeltseng, bruser, håndvask), vaskerum (tørretumbler, vaskemaskine), loungerum(bruser, sauna), havestue, toilet, baggård) På 1. etage: (Soveværelse med badeværelse(dobbeltseng eller 2 enkeltsenge Senge, bruser), Soveværelse med badeværelse(dobbeltseng eller 2 enkeltsenge Senge, bruser), Soveværelse med badeværelse(dobbeltseng eller 2 enkeltsenge Senge, bruser), Soveværelse med badeværelse(dobbeltseng eller 2 enkeltsenge Senge, bruser), Soveværelse med badeværelse(dobbeltseng eller 2 enkeltsenge Senge, bruser), Soveværelse med badeværelse(5x enkeltseng), Repos, opholdsrum(Fjernsyn, bordfodbold, biljard)) Gæsteophold Stueetage: (entre, sofastue(Fjernsyn(kabel), DVD-afspiller, CD-afspiller), spisestue, Køkken(ovn, mikrobølgeovn, opvaskemaskine ), soveværelse(2x enkeltseng), badeværelse(badekar med bruser), toilet, bryggers(tørretumbler, vaskemaskine)) Gæsteophold På 1. etage: (soveværelse(4x enkeltseng), soveværelse(3x enkeltseng, køjeseng), badeværelse(tørretumbler, bruser, håndvask, toilet, vaskemaskine), badeværelse(bruser, håndvask, toilet)) Gæsteophold På 2. etage: (soveværelse(2x enkeltseng, 2x håndvask), soveværelse(2x enkeltseng, håndvask), soveværelse(2x enkeltseng, håndvask), bordfodbold) bibliotek, radio, rejseseng, terrasse, have(privat), parkering, trampolin, dam(indhegnet), legeredskaber, bordtennisbord, barnestol, strygebræt, strygejern
Bemærk:
Opredte senge ved ankomst Af hensyn til ro, lejes dette sommerhus ikke ud til ungdomsgrupper Det er strengt forbudt at afholde studenterfest, polterabend eller fest med stort alkohol indtag i denne feriebolig
Bolig:
Dette feriehus med wellness, rekreation og fantastiske omgivelser er perfekt til en uforglemmelig ferie i Limburg. Ideel til ferie med familie og/eller venner. Beliggenheden i et skovklædt, landligt område i Limburg-landskabet, tæt på den tyske grænse, er ideel til smukke gå- og cykelture. Nærliggende Arcen med slotshaver, spa og ølbryggeriet Hertog Jan er en udflugt værd.Det skønne feriehus består af 2 gruppeovernatninger, hvilket betyder, at ejendommen har flere køkkener og opholdsrum. Der er en stor spisestue, hvor du kan gå med hele gruppen, en rummelig, åben opholds- og spisestue og endda et bibliotek. Til afslapning er der et wellness-område med sauna til rådighed. Der er et opholdsrum med bordfodbold og en stor tv-skærm med mulighed for at tilslutte din bærbare computer. Bordtennisbordet kan findes (opbevares) i skuret. I den private gårdhave til den historiske bolig kan du sidde udenfor, men stadig ude af vinden. Den store have, en smuk græsplæne, en terrasse og nogle legeredskaber er placeret på forsiden. Du kan medbringe dit eget grilludstyr eller leje det hos Slagerij van de Pasch i Meerlo. Forstærket musik (såsom en DJ eller et band) er ikke tilladt i huset. Roligt område: forstærket musik er ikke tilladt, og der skal være stille udenfor efter kl.
Layout:
Stueetage: (entre, Køkken(2x komfur, kaffemaskine, 2x ovn, 2x combi-mikroovn, 2x opvaskemaskine , 2x køleskab, fryser), stue / spisestue(Fjernsyn, spisebord, sofahjørne), Soveværelse med badeværelse(dobbeltseng eller 2 enkeltsenge Senge, badekar, bruser, håndvask, toilet), Soveværelse med badeværelse(dobbeltseng eller 2 enkeltsenge Senge, bruser, håndvask, toilet), Soveværelse med badeværelse(dobbeltseng eller 2 enkeltsenge Senge, bruser, håndvask, toilet), Soveværelse med badeværelse(dobbeltseng eller 2 enkeltsenge Senge, bruser, håndvask, toilet), Soveværelse med badeværelse(dobbeltseng eller 2 enkeltsenge Senge, bruser, håndvask, toilet), Soveværelse med badeværelse(dobbeltseng eller 2 enkeltsenge Senge, bruser, håndvask, toilet), Soveværelse med badeværelse(enkeltseng, dobbeltseng, bruser, håndvask, toilet), Soveværelse med badeværelse(5x enkeltseng, bruser, håndvask), vaskerum (tørretumbler, vaskemaskine), loungerum(bruser, sauna), havestue, toilet, baggård) På 1. etage: (Soveværelse med badeværelse(dobbeltseng eller 2 enkeltsenge Senge, bruser), Soveværelse med badeværelse(dobbeltseng eller 2 enkeltsenge Senge, bruser), Soveværelse med badeværelse(dobbeltseng eller 2 enkeltsenge Senge, bruser), Soveværelse med badeværelse(dobbeltseng eller 2 enkeltsenge Senge, bruser), Soveværelse med badeværelse(dobbeltseng eller 2 enkeltsenge Senge, bruser), Soveværelse med badeværelse(5x enkeltseng), Repos, opholdsrum(Fjernsyn, bordfodbold, biljard)) Gæsteophold Stueetage: (entre, sofastue(Fjernsyn(kabel), DVD-afspiller, CD-afspiller), spisestue, Køkken(ovn, mikrobølgeovn, opvaskemaskine ), soveværelse(2x enkeltseng), badeværelse(badekar med bruser), toilet, bryggers(tørretumbler, vaskemaskine)) Gæsteophold På 1. etage: (soveværelse(4x enkeltseng), soveværelse(3x enkeltseng, køjeseng), badeværelse(tørretumbler, bruser, håndvask, toilet, vaskemaskine), badeværelse(bruser, håndvask, toilet)) Gæsteophold På 2. etage: (soveværelse(2x enkeltseng, 2x håndvask), soveværelse(2x enkeltseng, håndvask), soveværelse(2x enkeltseng, håndvask), bordfodbold) bibliotek, radio, rejseseng, terrasse, have(privat), parkering, trampolin, dam(indhegnet), legeredskaber, bordtennisbord, barnestol, strygebræt, strygejern
Bemærk:
Opredte senge ved ankomst Af hensyn til ro, lejes dette sommerhus ikke ud til ungdomsgrupper Det er strengt forbudt at afholde studenterfest, polterabend eller fest med stort alkohol indtag i denne feriebolig
Vores gæsteanmeldelser Eksterne anmeldelser
Faciliteter
-
Afstand
-
Centrum5 km
-
Mad2 km
-
Offentlig swimmingpool10 km
-
Offentlig transport2 km
-
Restauranter2 km
-
Skov100 m
-
Sø5 km
-
Turistkontor10 km
-
-
Andre
-
Billard
-
Strygebræt
-
Strygejern
-
-
Beliggenhed
-
På landet
-
-
Byggestatus
-
Fritliggende
-
-
Børn
-
Bordfodbold
-
Bordtennisbord
-
Campingseng
-
Højstol
-
Legeredskaber
-
Trampolin
-
-
Fritids aktiviteter
-
Cykling
-
Golf
-
Gåture
-
Mountainbike
-
Ridning
-
-
Generel Information
-
Boligareal900 m²
-
Ikkeryger
-
Sjov for børn
-
WiFi
-
-
Køkkenudstyr
-
Fryser
-
Kaffemaskine
-
Kombinationsmikrobølgeovn
-
Komfur
-
Køleskab
-
Mikroovn
-
Opvaskemaskine
-
Ovn
-
-
Rundt om huset
-
Gårdsplads
-
HavePrivate
-
Parkering
-
PONDIndhegnet
-
Terrasse
-
-
Sanitet / Vask
-
Badekar
-
Badekar med bruser
-
Bruser
-
Håndvask
-
Sauna
-
Toilet
-
Tørretumbler
-
Vaskemaskine
-
-
Type
-
Gods
-
-
Værelsesudstyr
-
CD afspiller
-
DVD
-
Radio
-
Siddeområde
-
Spisebord
-
TV
-
Priser og kalender
Kalender
Ankomst
-
april 2026
ma ti on to fr lø sø 14 1 2 3 4 5 15 6 7 8 9 10 11 12 16 13 14 15 16 17 18 19 17 20 21 22 23 24 25 26 18 27 28 29 30 19 -
maj 2026
ma ti on to fr lø sø 18 1 2 3 19 4 5 6 7 8 9 10 20 11 12 13 14 15 16 17 21 18 19 20 21 22 23 24 22 25 26 27 28 29 30 31 23
Se om emnet er ledigt på den valgte dato
Ledig
Optaget
Ankomst mulig
Varighed
Pris
Periode
- Ankomst
- Afrejse
- Varighed
Personer
Op til 52 personer
Bemærk
Kan ikke bookes på nuværende tidspunkt.