Ferielejlighed - 8 personer - 73620 - Hauteluce
Alternative emner
Sommerhuse i nærheden (115)8 personer
Oversigt
Emne nr.: 357-FR-73620-199
Kan ikke beregne prisen med den valgte periode.
- Tilbyder miniferie Nej
- Opvaskemaskine Ja
Beskrivelse
Lejlighed i Haut Lieux nær skiløjpe
Bolig:
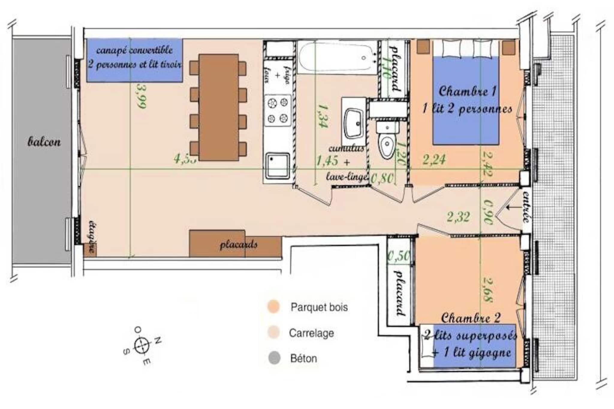
Højt over det maleriske Haut Lieux-område tilbyder denne charmerende alpelejlighed et roligt tilflugtssted med en betagende udsigt over Beaufortain-massivet og Mont Bisanne. Kun få skridt fra skiløbet er denne ejendom et paradis for både vintersportsentusiaster og naturelskere. Uanset om du nipper til din morgenkaffe på balkonen eller gør dig klar til en dag på pisterne, omgiver den rolige skønhed i de franske alper dig overalt. Indenfor er lejligheden omhyggeligt designet til at rumme op til syv gæster. Stuen har en hyggelig sovesofa til to, en enkelt udtræksseng og et tv til afslappede aftener. Det fuldt udstyrede køkken har opvaskemaskine, keramisk kogeplade, ovn, køleskab med fryser og mikrobølgeovn, hvilket gør madlavning til en leg. To komfortable soveværelser tilbyder afslappende rum: et med en dobbeltseng og et andet med en køjeseng og en udtræksseng. Badeværelset er udstyret med badekar, håndvask og vaskemaskine, mens et separat toilet øger bekvemmeligheden. Yderligere faciliteter inkluderer et privat skirum og en balkon med en liggestol, perfekt til at nyde den alpine luft. Lejligheden ligger kun 500 meter fra feriestedets centrum og tilbyder nem adgang til vigtige faciliteter. Der ligger en sports- og købmandsforretning i nærheden, samt den berømte restaurant Table des Armaillis, der blev tildelt en Bib Gourmand i 2022. Uanset om du er her for at stå på ski, vandre eller bare slappe af, placerer denne beliggenhed dig i hjertet af begivenhederne, samtidig med at den bevarer en fredelig atmosfære. Med slutrengøring inkluderet og mulighed for at leje linned eller babyudstyr (valgfrit) sikrer denne lejlighed en stressfri og mindeværdig alpeferie. Oplev magien i de franske alper i komfort og stil, og skab dyrebare minder med familie og venner.
Bolig:
Højt over det maleriske Haut Lieux-område tilbyder denne charmerende alpelejlighed et roligt tilflugtssted med en betagende udsigt over Beaufortain-massivet og Mont Bisanne. Kun få skridt fra skiløbet er denne ejendom et paradis for både vintersportsentusiaster og naturelskere. Uanset om du nipper til din morgenkaffe på balkonen eller gør dig klar til en dag på pisterne, omgiver den rolige skønhed i de franske alper dig overalt. Indenfor er lejligheden omhyggeligt designet til at rumme op til syv gæster. Stuen har en hyggelig sovesofa til to, en enkelt udtræksseng og et tv til afslappede aftener. Det fuldt udstyrede køkken har opvaskemaskine, keramisk kogeplade, ovn, køleskab med fryser og mikrobølgeovn, hvilket gør madlavning til en leg. To komfortable soveværelser tilbyder afslappende rum: et med en dobbeltseng og et andet med en køjeseng og en udtræksseng. Badeværelset er udstyret med badekar, håndvask og vaskemaskine, mens et separat toilet øger bekvemmeligheden. Yderligere faciliteter inkluderer et privat skirum og en balkon med en liggestol, perfekt til at nyde den alpine luft. Lejligheden ligger kun 500 meter fra feriestedets centrum og tilbyder nem adgang til vigtige faciliteter. Der ligger en sports- og købmandsforretning i nærheden, samt den berømte restaurant Table des Armaillis, der blev tildelt en Bib Gourmand i 2022. Uanset om du er her for at stå på ski, vandre eller bare slappe af, placerer denne beliggenhed dig i hjertet af begivenhederne, samtidig med at den bevarer en fredelig atmosfære. Med slutrengøring inkluderet og mulighed for at leje linned eller babyudstyr (valgfrit) sikrer denne lejlighed en stressfri og mindeværdig alpeferie. Oplev magien i de franske alper i komfort og stil, og skab dyrebare minder med familie og venner.
Faciliteter
-
Andre
-
Radiator
-
Terrasse
-
-
Byggestatus
-
Ferielejlighed
-
-
Fritids aktiviteter
-
Skiing
-
-
Generel Information
-
Boligareal40 m²
-
Opvaskemaskine
-
Ovn
-
TV
-
-
Køkkenudstyr
-
Fade og bestik
-
Kaffemaskine
-
Opvaskemaskine
-
Ovn
-
-
Type
-
Ferielejlighed
-
-
Værelsesudstyr
-
TV
-
Priser og kalender
Kalender
Varighed
Pris
Periode
- Ankomst
- Afrejse
- Varighed
- 1 uge
Personer
Op til 8 personer
Bemærk
Ankomst er ikke valgt.